Rif: Santa Lucia
NAPOLI
NAPOLI - zona Santa Lucia
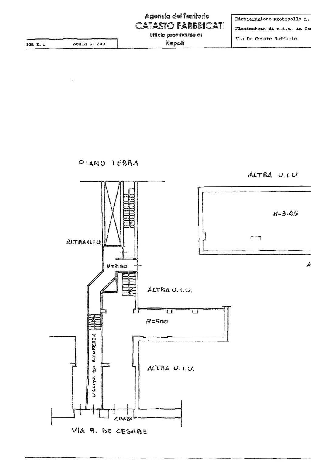
Napoli-Santa Lucia-Via R. De Cesare-a pochi passi dal lungomare, proponiamo in fitto locale commerciale di circa 600mq. su due livelli. Due ampie vetrine fronte strada, il locale risulta così distribuito circa 100mq. piano terra e circa 500 mq. piano interrato. L'immobile, è ubicato sul tratto centrale di via R. De Cesare e di fronte al palazzo della Regione Campania, in considerazione della grande superficie si presta a molteplici utilizzi: ad es.Palestra, locale notturno, spa etc.
Per ulteriori info ed appuntamenti:
Lombardo Immobiliare
via M. Kerbaker n.65
Tel.08117515651-3331466468
info@lombardoimmobiliare.it
Per ulteriori info ed appuntamenti:
Lombardo Immobiliare
via M. Kerbaker n.65
Tel.08117515651-3331466468
info@lombardoimmobiliare.it
Consistenze
| Descrizione | Superficie | Sup. comm. |
|---|---|---|
| Principali | ||
| Negozio - piano terra | 100 Mq | 100 Mqc |
| Negozio - piano interrato | 500 Mq | 500 Mqc |
| Totale | 600 Mqc | |






