Rif: P.Co San Paolo
NAPOLI
NAPOLI - zona Fuorigrotta
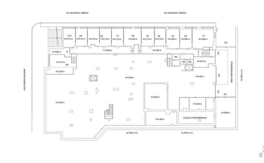
L'immobile in oggetto è ubicato all'interno del complesso immobiliare denominato P.co San Paolo, i cui corpi di fabbrica risalengono agli inizi degli anni 60'. La planimetria ha una forma geometrica regolare (incluso in un rettangolo di circa 40 metri per 24 metri) il piano seminterrato presenta il locale principale produttivo servito da vari ambienti ad uso deposito e la porzione fuori terra suddivisa in 11 locali uffici collegati da un disimpegno al quale si accede anche autonomamente dalla area scoperta esclusiva al civico 29 della via V. Tiberio. Il piano seminterrato, adibito a laboratorio ed uffici, ha un'altezza interna di 4,00 metri circa nella zona produttiva e di 2,70 metri nella zona uffici fuori terra, per una superficie coperta totale di 1.072,00 mq. circa la superficie scoperta esclusiva (per accesso anche carrabile dalla via V. Tiberio) di 62,00 mq. circa. Vista l'enorme quadratura si adatta a molteplici utilizzi sia di natura commerciale che non. Per ulteriori info ed appuntamenti:
Lombardo Immobiliare
via M. Kerbaker n.65
80129 Napoli
Tel.08117515651-3331466468
www.lombardoimmobiliare.it
info@lombardoimmobiliare.it
Lombardo Immobiliare
via M. Kerbaker n.65
80129 Napoli
Tel.08117515651-3331466468
www.lombardoimmobiliare.it
info@lombardoimmobiliare.it
Consistenze
| Descrizione | Superficie | Sup. comm. |
|---|---|---|
| Principali | ||
| Magazzino - piano terra | 1.072 Mq | 1.072 Mqc |
| Esterno - piano terra | 62 Mq | 31 Mqc |
| Totale | 1.103 Mqc | |






